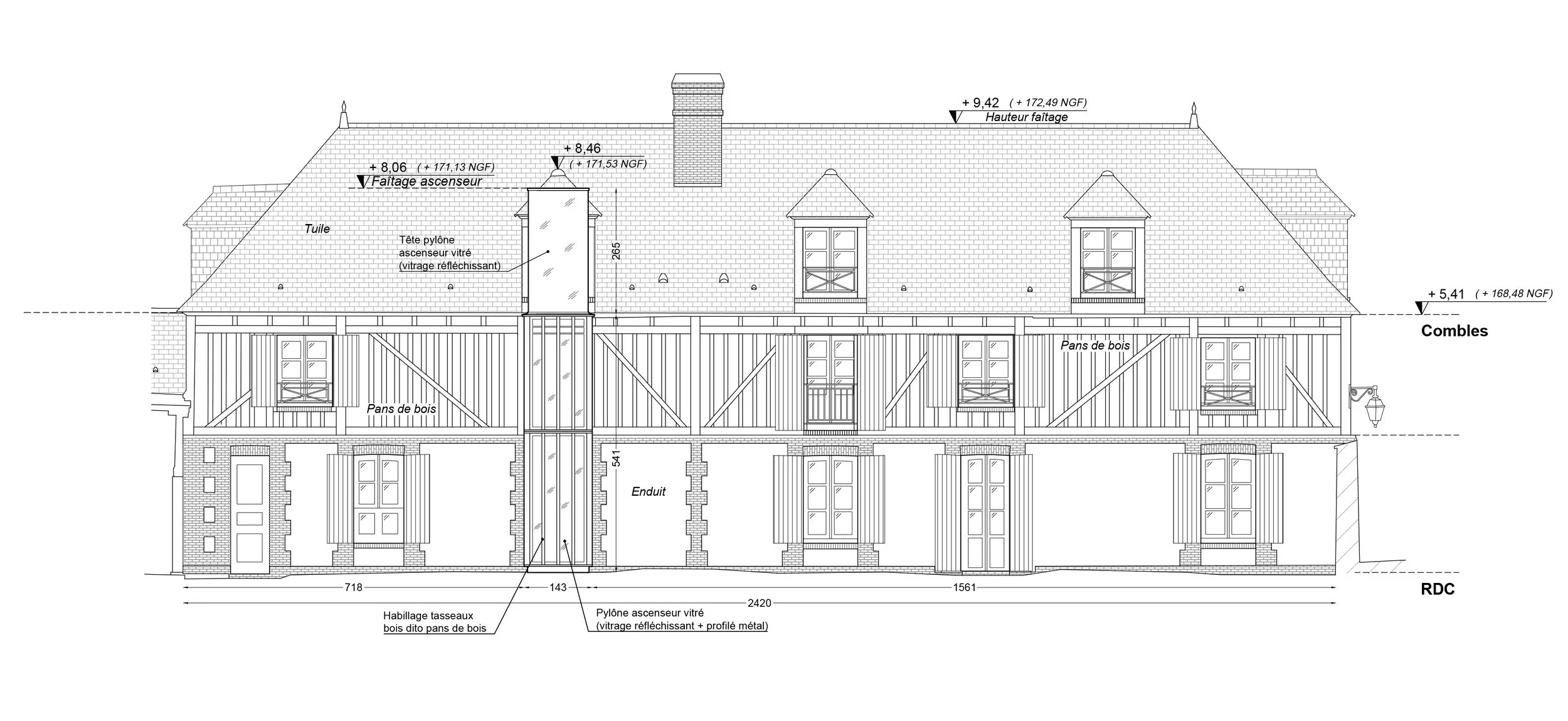
Moulin Création d’un escalier extérieur vitré Méréglise (28)En cours Voir en taille réelle Voir en taille réelle Voir en taille réelle